MiscRes: Magazine Articles
| The excerpted information below is posted as educational material with no intention of monetary gain. If any copyright holder of this material takes exception to the usage of their information herein, they are asked to contact the Sportsterpedia to discuss the issue. Click Here for contact information on the “Welcome” page of the Sportsterpedia. |
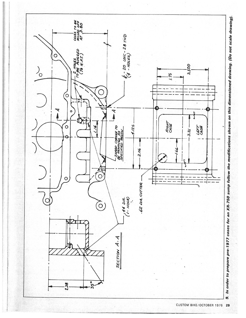
This article is an excerpt from Custom Bike Magazine, October 1976 Edition: 1)
The content has not been edited from it's original published version.
Any information in these articles, mistakes or omissions are the sole responsibility of the respective owners.
NOTE: When reading this article, understand there are several different methods / versions of this mod offered in the same article.
Not all mods stated will be/can be performed together.
The article is simply offering several ways of acheiving the same goal.








